Двустаен апартамент
в блок «Виола», вход «А», ап. «В.А 12»

Разположен на третия етаж, апартаментът е с панорамна гледка към парка на комплекса, бул. „Владислав Варненчик” и Варненското Езеро. Жилището е с обща площ 67.81 м2 насред 26000 м2 зелен парк,с контрол на достъпа и ниски месечни такси за поддръжка.

Апартаментът е с целогодишна индивидуална климатизация — за цялото жилище и за отделните стаи. Термопомпа замества изцяло климатик и парно при охлаждане и отопление на дома. Високоинтелигнетни безшумни конвектори (не е радиатор), управлявани с дистанционно отопляват и охлаждат дома. Топлинната енергия се измерва с индивидуален за апартамента топломер, без да се плащат общи части. Геотермалната енергия и минералната вода намаляват с до 40% сметките за бита* на апартаментите в комплекса.

* пресмятането е правено за четиричленно семейство

цена и подробна информация
покажи на етажа
разпределение

Подробна информация за ап. «В.А 12»

Апартаментите се издават с:

Кристално пречистената за вас минерална вода е източник на отопление, охлаждане, гореща вода за кухня и баня и питейна минерална вода.

Тип Двустаен
Блок «Виола»
Вход «А»
Етаж трети
Изложение Изток-Запад
Обща площ 67,81 м2
Чиста площ 60 м2
Гледка към двор Да
Статус Резервиран
Цена (сега) 66900 €

Блок «Виола», етаж трети
Ап. «В.А 12» с изложение Изток-Запад

Вход «Б»

Вход «А»

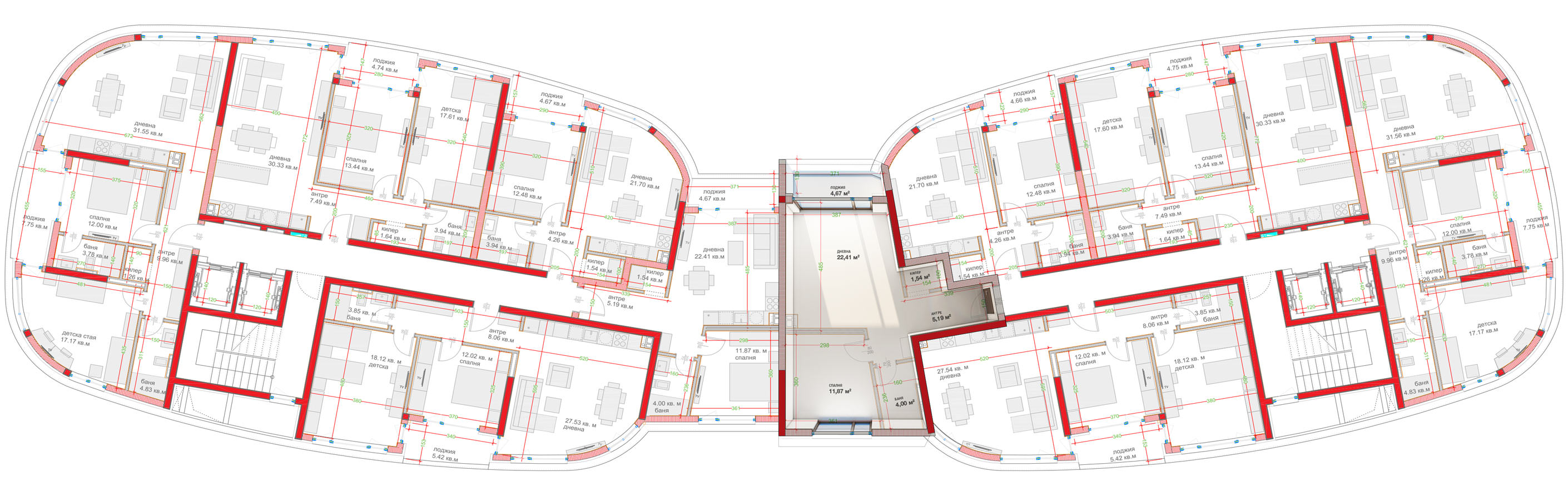
Разпределение на стаите за ап. «В.А 12»

Функционална дневна с кухненски бокс с площ 22,41 м2. спалня — 11,87 м2 , антре — 5,19 м2 , баня — 4,00 м2 , удобен килер — 1,54 м2 , лоджия — 4,67 м2 ,

Контакти

«ИСУ Инвест» ЕАД
Част от групата на «Интерсервиз Узунови» АД
Централен офис: Варна 9009, бул. «Владислав Варненчик» 186
тел. 0888 810 810, факс: 052/630 730
ел. поща: vcp.office@isu.bg

Задайте въпрос

Вашето име:
Ел. поща:
Телефон:
Въпрос:
Остана да попълните поле «Ел. поща», «Въпрос»

Движение на слънцето за ап. «В.А 12»

Показаната графика за движение на слънцето е за месец Юли 2017 година.

Апартаментите на «Варна сити парк ЮГ»

☰ начин на плащане
  1. При подписване на предварителен договор внасяте начална вноска.
  2. Остатъка може да платите по два начина:
    А) след Акт 16, при прехвърляне на собствеността;
    Б) по време на строителството, като на всяка платена сума получавате до 7,5% отстъпка;
  3. Осигурили сме до 80% преференциално ипотечно кредитиране за наши клиенти от няколко български банки. Специални облекчени условия за българи работещи в чужбина.

Разбрах

Имате ли още въпроси?
Позвънете ни: +359 888 810810
Пишете ни: vcp.office@isu.bg

☰ 0,69 лв./м2 такса

Месечната подръжка включва:

  1. всички текущи разходи (заплати на персонал, консумативи, сметките за ток на общите части, осветление в парка, асансьорите и др.);
  2. 24 часов контрол на достъп на два контролно-пропусквателни пункта;
  3. абонамент за сервизно обслужване на асаньорите;
  4. подръжка на озеленяване на 25 000 м2 парк;
  5. почистване на стълби, стълбищни клетки, общите части и зелен парк;
  6. поддръжка на подземен паркинг от 20 000 м2;
  7. видео наблюдение;
  8. текуща поддръжка на инсталациите в комплекса;
  9. текуща поддръжка на басейна с гореща минерална вода;
  10. осветление на стълбища и коридори;
  11. осветление на общите части на 20 000 м2 паркова зона;
  12. осветление на подземният гараж за 640 паркоместа.
Ценообразуване

Таксата се формира на база квадратните метри посочени като «обща площ» за всеки отделен имот.

Пример

Например за двустаен апартамент от 65,02 м2 ще се плаща 44,86 лв. месечно.

Разбрах

Имате ли още въпроси?
Позвънете ни: +359 888 810810
Пишете ни: vcp.office@isu.bg

Проект на «Интерсервиз Узунови» АД

Позвънете ни: 0888 810 810
Отговаряме и на Viber